Проект 14 Проект 14 Проект 14 Проект 14 Проект 14

Проект 14

Каркасные дома Каркас
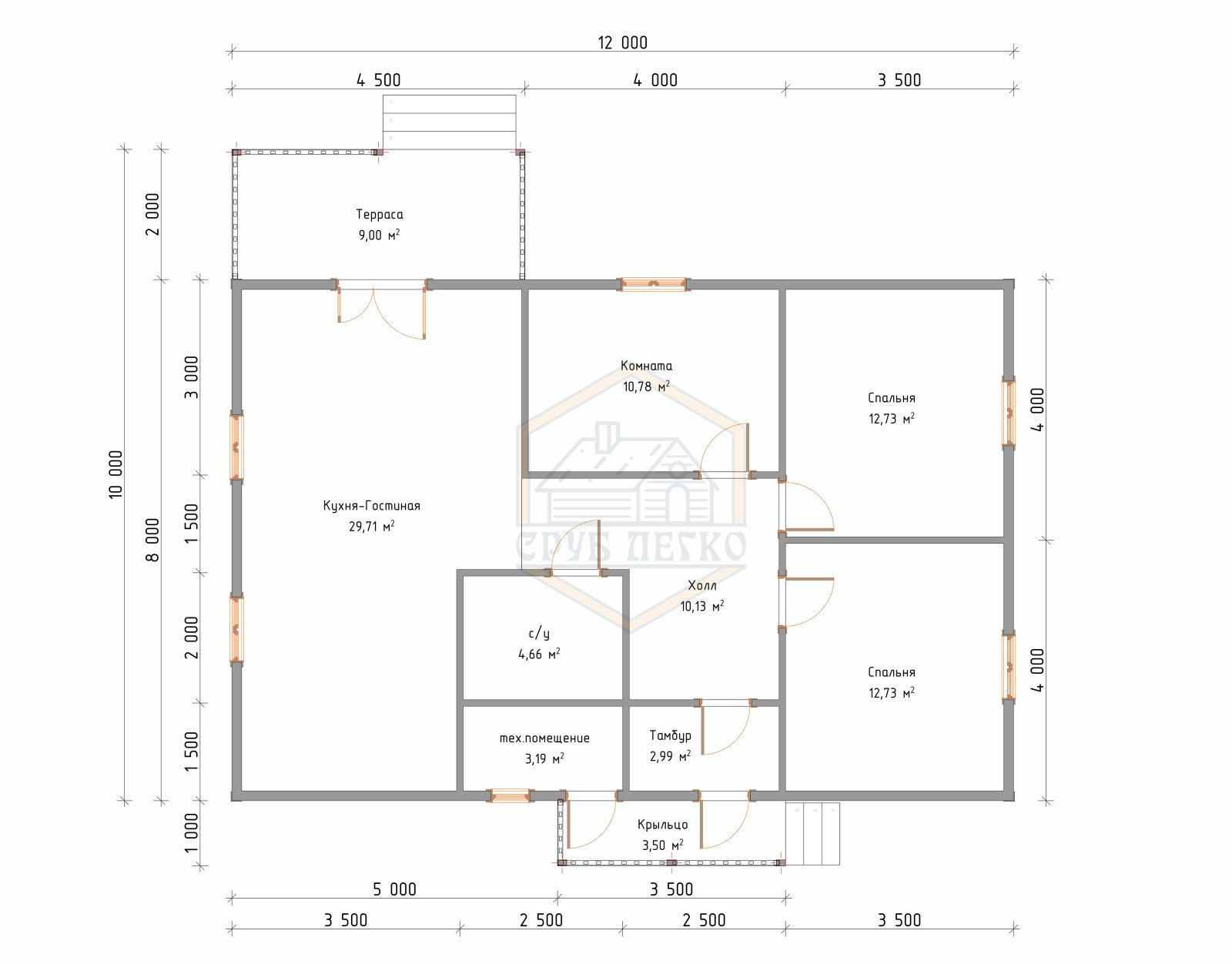
Габариты
12×10 м
Общая площадь
120.00 м²
Всего комнат
87
Санузлов
1

Дополнительные опции

Терраса
2 600 000 ₽
2 300 000 ₽

О проекте

Проект разработан с учётом современных требований к комфорту и энергоэффективности. Дом отличается продуманной планировкой, которую можно адаптировать под ваши нужды. Строим строго по проектной документации, используя качественные материалы и проверенные технологии.

Планы этажей

Любые изменения в плане - бесплатно!

Обратите внимание!

Проект можно изменить по вашим требованиям и желаниям: добавить перегородки и двери; переместить или убрать окна; изменить строительные материалы
Стоимость

Гарантия 2 года

Мы даём двухлетнюю гарантию на свои дома. В случае проблем — приезжаем и переделываем за свой счёт

Строим по проекту

Для всех домов мы обязательно делаем проект с расчетом нагрузок и подробной инструкцией по сборке

Экскурсия на строящийся дом

Запишитесь на экскурсию на строящийся дом — своими глазами посмотрите на качество материала и работ

Фотоотчеты со стройки

Вам не нужно приезжать на стройку — фотографии со стройки вы получаете регулярно в удобном для вас мессенджере